EEN HEEL SMAL STADSHUISJE, TIENEN
Een kleine huurwoning
Uitvoering: Stopgezet
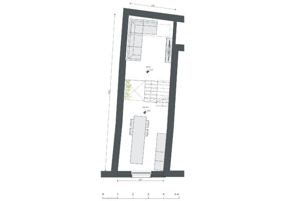
Dit is het smalste huis in de Bostsestraat en misschien zelfs in heel Tienen! Met amper 3m gevelbreedte ligt de uitdaging van dit project in het evenwicht vinden tussen programma, ruimtelijkheid, functionaliteit en lichtinval. Door de beperkte grondoppervlakte zijn we gedwongen de functies over verschillende verdiepingen te spreiden. Om een ruimtegevoel op te roepen zijn we met splitlevels aan de slag gegaan. De verschillende halve verdiepen worden met elkaar verbonden door een centrale, open trap. Een vide wordt van boven tot onder gecreëerd om daglicht binnen te brengen. De woonfunctie blijven heel open om het dieptezicht te behouden. De slaapfuncties en badkamer krijgen en raampje met uitzicht op de vide, voor extra daglicht en een speels karakter. Boven de badkamer wordt een dakterras gerealiseerd dat een mooi uitzicht biedt en uitnodigt tot zonnebaden. De gevel brengt met haar witte cementering wat licht in de straat. De raamopeningen worden benadrukt met een houten kader en volgen het ritme van de naastliggende gebouwen. Het gebruikt van de cementering verwijst naar een mooie historische gevel verder in de straat en het hout brengt en hedendaags en warme toets om de gevel eigenheid en karakter te geven.
