SILVANA & KEVIN, BOUTERSEM
Grondige verbouwing en uitbreiding van een woning
Uitvoering: in uitvoering
In een rustig straatje in Boutersem staat het huis van Kevin en Silvana. Een woning uit het midden van de vorige eeuw met een heleboel bijgebouwen en koterijen. Koterijen met potentieel.
Achteraan staat een mooi duiventil van 2 bouwlagen met zadeldak, verbonden aan het huis door een aanbouw met licht hellend golfplaten dak. Tegen de achtergevel is een verouderede veranda, die weinig meerwaarde biedt aan de woning.
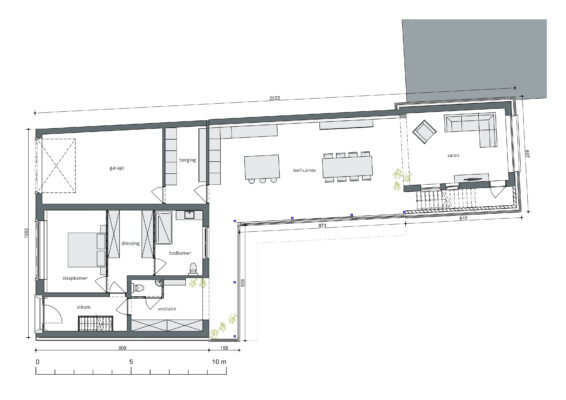
Het plan van de woning wordt volledig gemodelleerd om een toekomstgerichte woning te creëren. De huidige salon en eetkamer maken plaats voor een ruime slaapkamer met dressing en badkamer. De smalle keuken wordt een verlengde van de inkomhal waar plaats is voor een toilet, een grote vestiairekast, een bankje. De leefruimte verhuist naar de aanbouw waar zich de wasplaats, berging en garage bevonden. Deze krijgt een nieuwe gevel met glas over de volledige breedte. Het dak wordt opgehoogd om binnen meer ruimtelijkheid te creëren. De veranda wordt vervangen door een nieuw volume dat de verbinding maakt tussen inkomhal en leefruimte. De duiventil wordt breder om een trap in het volume te integreren dat toegang biedt tot een bureauruimte onder het dak. Onderin wordt de muur tussen aanbouw en duiventil opengemaakt om de ruimte open te rekken en plaats te maken voor een zithoek. Een groot raam biedt uitzicht op de mooie tuin.
Op de verdieping van de woning worden 2 ruime slaapkamers en een badkamer en aparte WC gecreëerd. De zolder krijgt dakramen om daglicht in de ruimte te trekken. Hier kan gelogeerd, gestudeerd of gespeeld worden.
Door het verplaatsen van de woonfuncties naar de achterzijde wordt de relatie met de tuin veel belangrijker. Het meer gesloten karakter van de woning zelf blijft behouden en is volledig in de lijn van slaapvertrek. Het naar de gelijkvloers halen hiervan volgt de lange termijnvisie van de bewoners, die hier nog vele, vele jaren willen wonen.
